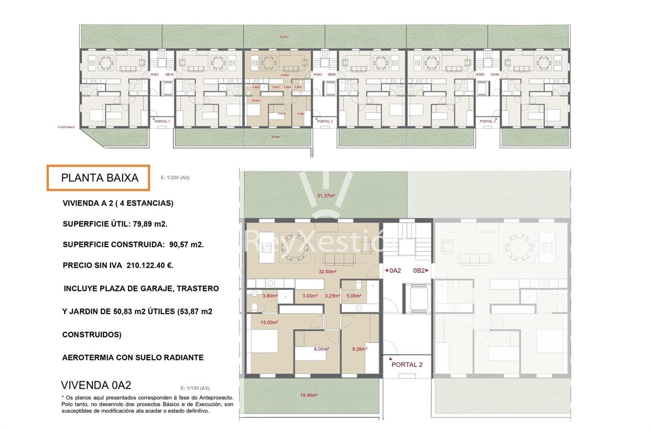
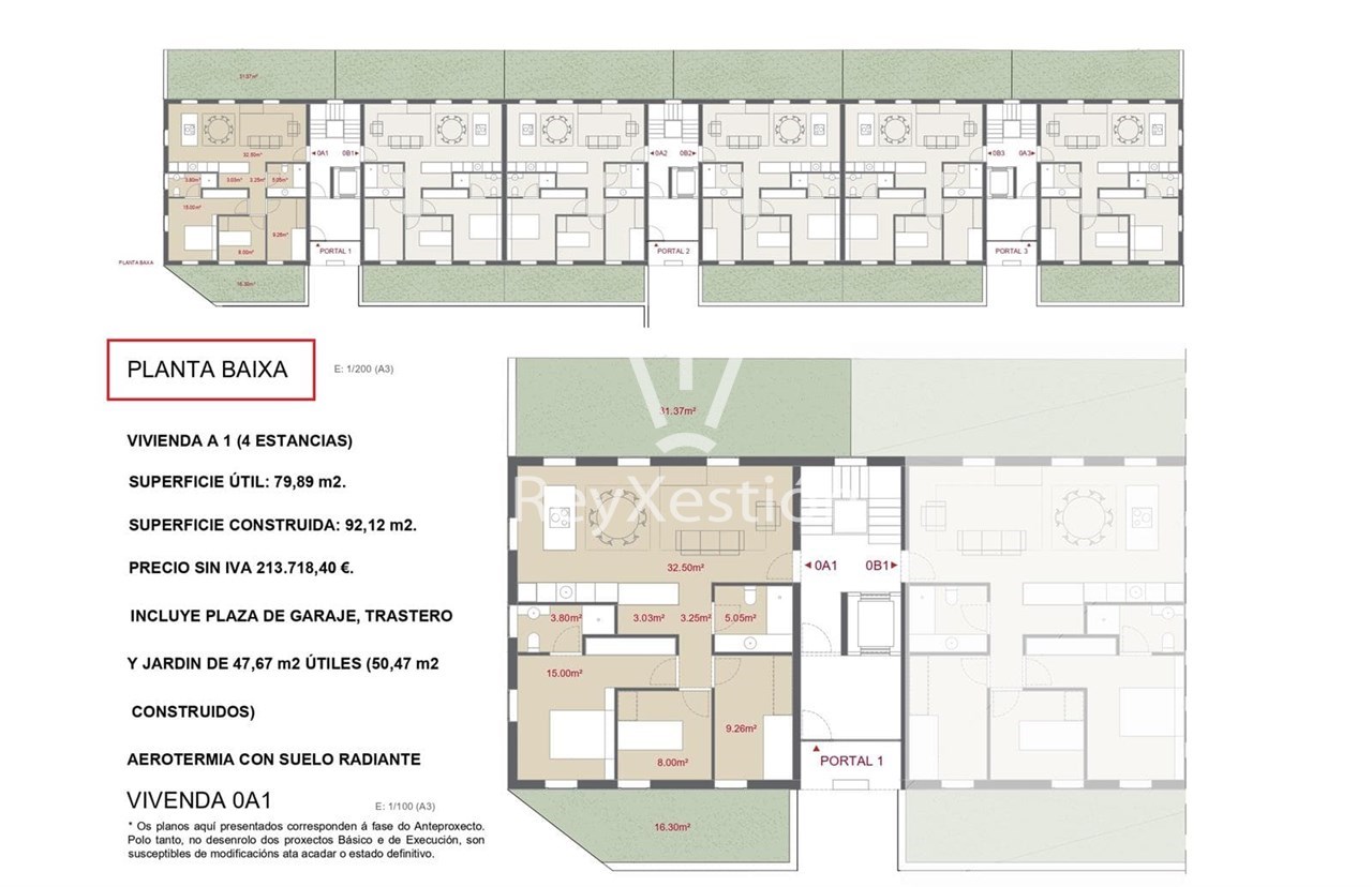
Oportunidade única para adquirir un piso de nova obra en Bertamiráns, con prezos que comezan en 175.315 € +IVE. Tódalas propiedades inclúen garaxe e trasteiro, no concello de Ames, nun réxime de cooperativa que permite aos compradores aforrar custos e participar activamente na toma de decisións. Están dispoñibles 24 vivendas con superficies que van dende 63 m² ata 98 m².
A localización da propiedade non podería ser mellor: situadas na Avenida da Peregrina, as vivendas gozan dunha ubicación privilexiada nunha zona tranquila e familiar de Bertamiráns, pero tamén perfectamente comunicada co resto de Santiago de Compostela, situado a tan só 10 minutos en coche. Esta proximidade á cidade fai que sexa unha opción ideal para quen busque a comodidade e os servizos da cidade, pero nun ambiente máis calmo e accesible.
As vivendas dispoñen de pisos de 1, 2 e 3 habitacións, pensadas para cubrir as necesidades de diferentes perfís de compradores, dende parellas ou profesionais ata familias que busquen un espazo cómodo e ben situado. A zona conta cunha gran variedade de servizos nas proximidades: supermercados, centros educativos, zonas verdes e transporte público que conecta directamente con Santiago de Compostela. Todo isto fai que a localización sexa ideal para persoas que desexan vivir nun entorno tranquilo, pero con todo o que necesitan ao alcance de la man, e con acceso rápido á cidade.
A inversión nunha vivenda en réxime de cooperativa non só reduce os custos de adquisición, senón que tamén permite personalizar algúns aspectos da vivenda segundo as necesidades e gustos dos compradores, o que aumenta o valor e a satisfacción final. Ao estar en réxime de cooperativa, tamén se elimina a carga adicional de intermediarios no proceso de compra, facendo que o prezo final sexa máis accesible e ofrecendo unha oportunidade de ahorro significativo.
Esta é a oportunidade ideal para investir nunha vivenda de calidade nunha zona en crecemento e ben comunicada con Santiago de Compostela, que garantirá unha rendibilidade a longo prazo, tanto se se adquire como vivenda habitual ou para alugueiro estable. Non perdas a oportunidade de formar parte dun proxecto de nova construción nunha zona con gran demanda e con moitas facilidades de acceso á cidade.
Para máis información ou para concertar unha visita, non dubides en contactar connosco.
ReyXestión na Rúa Vista Alegre 100 baixo, Santiago, ou chamenos ao 630 08 56 78.